Dortmund PHOENIX
Hympendahlbrücke
Schadenskartierung
 
Rheinauhafen, Köln
Halle 11
Fotodokumentation
 
Rheinwerk Bonn
Rohmühle
Fotodokumentation
 
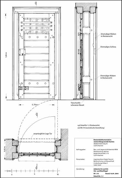
Aachen, Gefängnis
Kreuzbau
Zellentür
 

 

Gefängnisanlage Aachen
Detailzeichnung der Zellentür

Für den Neubau des Justizzentrums Aachen war ein Abriss der aus dem 19. Jahrhundert stammenden kreuzförmigen Gefängnisanlage und des angrenzenden Wirtschaftsgebäudes geplant. Unser Büro erstellte eine umfangreiche zeichnerische Dokumentation des baulichen Bestandes in Grundrissen, Schnitt- und Ansichtszeichnungen sowie der Austattungsdetails im Maßstab 1:10. Neben einer umfassenden Baubeschreibung wurden auch die Spuren der ursprünglichen Raumfunktionen und des Bauzustandes von 1872 dokumentiert.