Koblenz, Ravelin
Ehrenbreitstein
1.OG, Querschnitt
 
Dortmund PHOENIX
Hympendahlbrücke
Ansicht Widerlager
 
Burg Sooneck
Niederheimbach
Torgebäude
 
Aachen - Gefängnis
Kreuzbau
1.OG, Grundriss
 
Rheinwerk Bonn
Rohmühle
Längsschnitt
 
St. Ursula, Köln
Längsschnitt
 
Rheinwerk Bonn
Rohmühle
Grundriss EG
 
Dom zu Köln
Schatzkammer
Nord-Süd-Schnitt
 
Dom zu Köln
Schatzkammer
Ost-West-Schnitt
 
Brühl
Schloss Falkenlust
Grundriss DG
 
Köln-Dellbrück
Wohnhaus
Bestandspläne
 

 

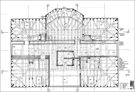
Schloss Falkenlust, Brühl
Grundriss Dachgeschoss

Die Stuckdecken des 1. Obergeschosses zeigten an verschiedenen Stellen größere Risse und es bestand der Verdacht, dass diese von der darüber liegenden noch in großen Teilen originalen Dachkonstruktion herrührten. Der Statiker brauchte detaillierte Bestandszeichnungen zur Erfassung des Tragsystems. Vor allem mussten Sanierungs-maßnahmen aus den 50er Jahren des vorigen Jahrhunderts neu dokumentiert werden, von denen bereits keine Aufzeichnungen mehr in den Archiven zu finden waren.